The Cad Annex
Profile
Construction Documents
Graphics
3dwalkthrough
Private Residence
Restaurant/Lodge
Projects
Nandana Resort
Pauoa Beach Private Residence
Clients
Contact
FTP
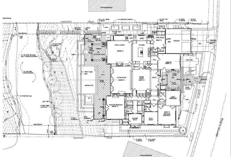
Construction Documents
Selected low-res samples of construction documents. Click any image to start slideshow.